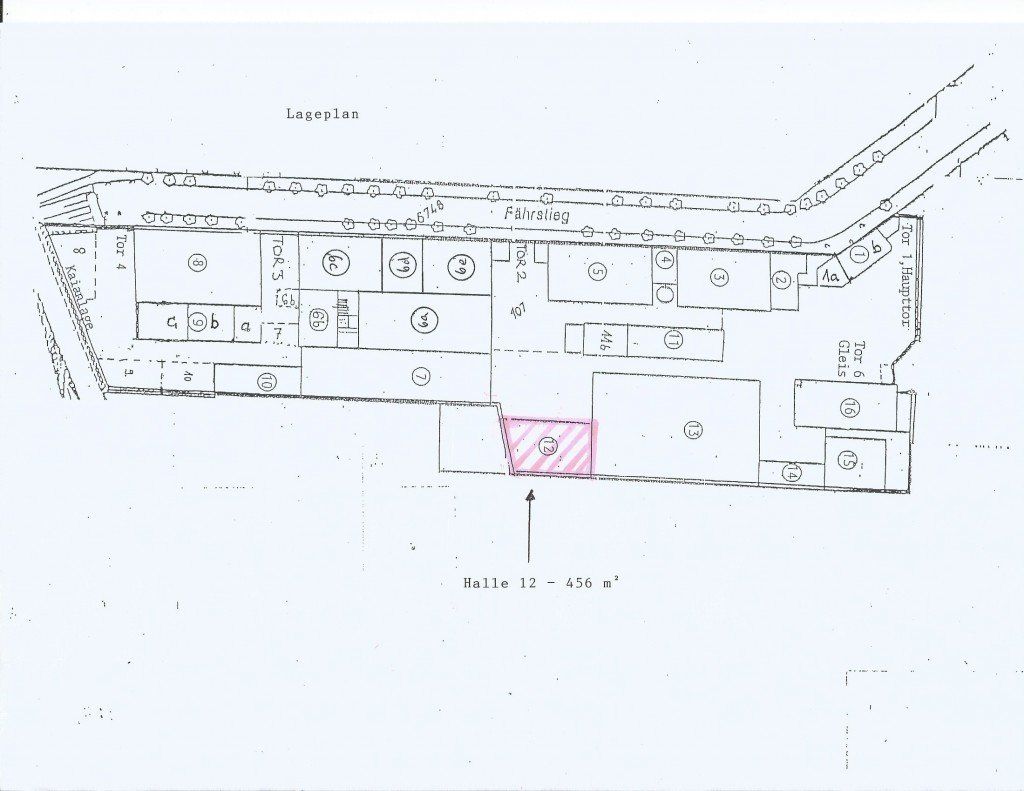
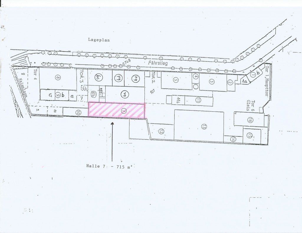
715 m² / 456 m² Lager / Halle / Werkstatt
715 m² / 456 m² Lager / Halle / Werkstatt
Halle 7 und Halle 12
Beziehbar kurzfristig
Lage Hamburg-Wilhelmsburg verkehrsgünstig Hafennähe (Ernst-August-Schleuse) und zur BAB-Anschlussstelle Georgswerder Gleisanschluss
Öffentliche Verkehrsmittel:
S3/S31 bis Bahnhof Veddel oder Wilhelmsburg
Busanbindung Linie 13 bis Veringstraße/Vogelhüttendeich
Busanbindung Linie 156 bis Veringstraße/Ernst-August-Schleuse (Fähre)
Schnellbuslinie 34 Eppendorf ↔ Wilhelmsburg
Fähre 73 Landungsbrücken ↔ Ernst-August-Schleuse
Nutzfläche 715 m² oder als Teilfläche
Beschreibung Halle 7
- Ebenerdig
- Deckenhöhe ca. 8 m mit großem Lichtband
- Zwei große belichtete LKW-Tore, je 4,75 m x 6 m H
- LKW-Bremsenprüfstand mit LKW-Grube
- Unbeheizt
- Industriestrom/ Kraftstromversorgung
- 4 Stellplätze vor dem Absperrzaun, links neben der Halle (10 x 5 m) ~ 50 m²
- Sanitäreinheit (Toilette, Dusche, Waschgelegenheit) im Hallenanschluss, ca. 7,5 m²
- 1 bis 2 Garagen à ~ 29 m² können bei Bedarf ggf. zzgl. mit vermietet werden oder auch eine Büroeinheit mit Direktzugang (84 m²) (Werkswohnung ähnlich)
Nutzfläche 456 m² (19 m x 24 m)
Beschreibung Halle 12
- Ebenerdig
- Deckenhöhe 7 - 12 m
- Drei große belichtete LKW-Tore, je 4,90 m x 6 m H
- Warmluftheizer
- Industriestrom / Kraftstromversorgung
- Sanitäreinheit (Toilette, Dusche, Waschgelegenheit) in Verbindung mit Halle 7 im Hallenanschluss, ca. 7,5 m² oder Gemeinschaftstoilette/Gewerbehof
Miete:
Objekt ab 4,00 €/ m²
mtl. zzgl. Nebenkosten und Heizung, Strom zzgl. 19% MwSt.
Gesamt:
4.680,00 € mtl.
zzgl. Nebenkosten und Heizung, Strom zzgl. 19% MwSt. (ohne Garagen)
Nebenkosten:
Betriebskosten-Pauschale 450,00 € mtl. zzgl. 19% MwSt., zzgl. Wasserabschlag
(Abschläge)
Heizkosten-/Warmwasser-Pauschale 100,00 € netto (Sanitärräume/nutzungsabhängig)
Stromkosten-Pauschale nutzungsabhängig
Alle Preise zzgl. 19% MwSt.
Kaution 14.000,00 €




















